Uudet käyttö- ja sopimusehdot
Päivitämme käyttö- ja sopimusehtojamme. Uudet ehdot ovat voimassa 1.5.2025 alkaen. Tutustu ehtoihin
Bulevardi 32 Punavuori, Helsinki
00120Tyyppi
Liiketila
Koko
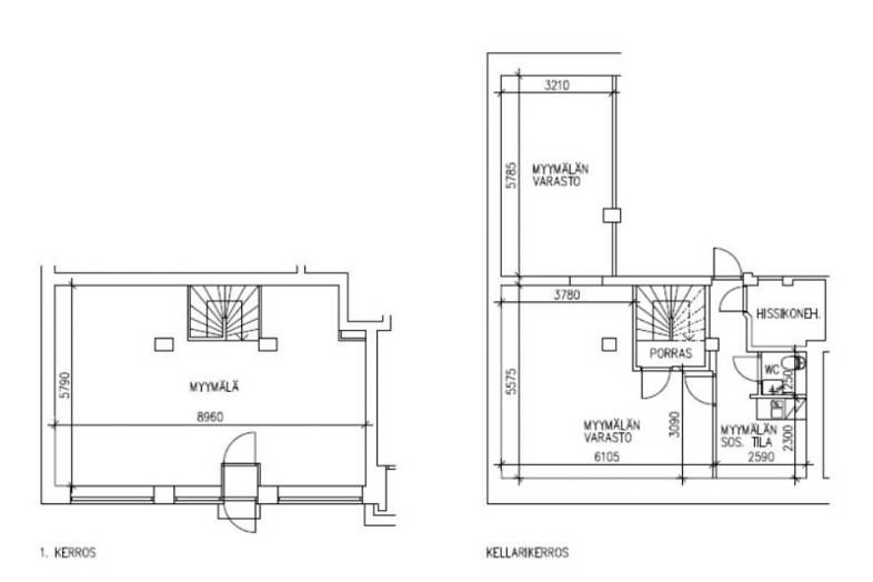
114 m²
Vuokra
Kysy hintaa!
Vastaremontoitu kahden kerroksen liiketila. Katutasossa 53 m2 ja kellarissa 61m2. Tilassa on uusittu lattiat ja maalattu seinät. Ei sovellu kahvilaksi tai ravintolaksi. Edullinen vuokra. Ota yhteyttä ja sovi esittely, vuokrauspalvelumme on tilanhakijoille ilmainen.
Käynti Albertinkadun puolelta.
Sijainti: Punavuori
Perustiedot
Tyyppi:
Liiketila
Sopimustyyppi:
Vuokrataan
Osoite:
Bulevardi 32, 00120 Helsinki
Kaupunginosa:
Punavuori
Tilan koko
Kokonaispinta-ala:
114 m²
Ympäristö
Pysäköinti:
Kadulla
Lähipalvelut:
Useita ruokaravintoloita 5 minuutin säteellä.
Liikenneyhteydet:
Ratikka Bulevardilta.
Kartta
Tietoa ilmoittajasta

Senaatin Notariaatti Oy LKV
Näytä kaikki saman ilmoittajan kohteetLämmittäjänkatu 4 A
00880
HELSINKI




















