Uudet käyttö- ja sopimusehdot
Päivitämme käyttö- ja sopimusehtojamme. Uudet ehdot ovat voimassa 1.5.2025 alkaen. Tutustu ehtoihin
Nuijamiestentie 5 Haaga, Helsinki
00400Tyyppi
Toimisto
Koko
10 - 450 m²
Kerros
2 / 3
Vuokra
Kysy hintaa!
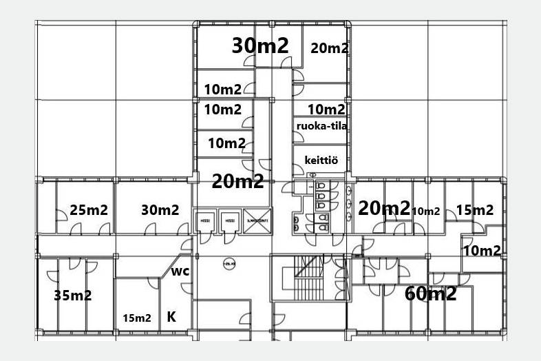
Vuokrataan Haagan toimistoristikko-talosta A-portaan 2. kerroksessa siistikuntoinen erikokoisiin huoneisiin jaettu toimisto, tiloissa on juuri uusitut keittiö-taukotilat ja vessat. Toimiston huonejärjestystä on muokattavissa käyttäjälle sopivaksi. Yksi lohko on noin 150m2 ja se on jaettavissa kahdelle käyttäjälle. Talossa on jäähdyttävä ilmanvaihto, nopeat tietoliikenneyhteydet sekä reilusti pysäköintitilaa isossa parkkihallissa. Kiinteistö on peruskorjattu viimeisen 10 vuoden kuluessa ja on siten edustavassa kunnossa. SOITA ja SOVI ESITTELY
Haagan Toimistoristikko on toimisto- ja liikekiinteistö Haagassa, Hämeenlinnan-väylän varrella. Kiinteistö on täysin peruskorjattu viimeisen 10-vuoden aikana.
Sijainti: Haaga, Hämeenlinnan-väylän varrella
Perustiedot
Tyyppi:
Toimisto
Sopimustyyppi:
Vuokrataan
Osoite:
Nuijamiestentie 5, 00400 Helsinki
Kaupunginosa:
Haaga
Tilan koko
Kokonaispinta-ala:
450 m²
Tilan jakautuminen tilatyyppien mukaan
| Tilatyypit | Min m² | Max m² | €/m²/kk |
|---|---|---|---|
| Toimisto | 10 | 450 |
Rakennustiedot
Energialuokka:
C
Lisätiedot
Kerros:
2 / 3
Muita tietoja:
Yksittäisten huoneiden hinnat: 10m² 200€, 15m² 250€, 20m² 330€, 25m² 410€,
30m² 490€, 35m² 560€, 60m² 900€. Hintoihin lisätään alv 24%.
Ympäristö
Pysäköinti:
Kadulla kahden ja neljän tunnin paikkoja. Erillinen pysäköintirakennus sekä pihapysäköintipaikkoja, yhteensä 373 ap.
Lähipalvelut:
Lähellä useita lounasravintoloita
Liikenneyhteydet:
HSL bussipysäkki talon edessä, Jokeriradan pysäkki rakenteilla 400 metrin etäisyydelle.
Kartta
Tietoa ilmoittajasta

Senaatin Notariaatti Oy LKV
Näytä kaikki saman ilmoittajan kohteetLämmittäjänkatu 4 A
00880
HELSINKI


























