Uudet käyttö- ja sopimusehdot
Päivitämme käyttö- ja sopimusehtojamme. Uudet ehdot ovat voimassa 1.5.2025 alkaen. Tutustu ehtoihin
Nuijamiestentie 5 Haaga, Helsinki
00400Tyyppi
Toimisto
Koko
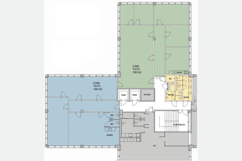
148 m²
Kerros
2 / 3
Myydään Haagan toimistoristikko-talosta hyväkuntoinen 148m2 avotoimisto jossa 3 avotilaa, keittiö-taukotila sekä vessat (Toimisto on liitettävissä viereiseen 180m2 toimistoon jolloin yhteispinta-ala on 328m2). Talossa on jäähdyttävä ilmanvaihto, nopeat tietoliikenneyhteydet sekä reilusti pysäköintitilaa isossa parkkihallissa. Kiinteistö on peruskorjattu viimeisen 10 vuoden kuluessa ja on siten edustavassa kunnossa. Haagan Toimistoristikko Oy on hyvin hoidettu keskinäinen kiinteistöosakeyhtiö. SOITA ja KYSY LISÄÄ: - 0400-688861 / Jukka Myyryläinen
Haagan Toimistoristikko on vuonna 1973 Helsingin vuokratontille rakennettu toimisto- ja liikekiinteistö Haagassa, Hämeenlinnan-väylän varrella. Talossa on toiminut mm. Union-Öljy sekä Neste. Rakennuksen huoneistoala on 9.908m2 käsittäen toimisto,- liike- ja varastotiloja. Lisäksi kiinteistöllä on erillinen paikoitustalo 4.869m2 sekä pihapysäköintipaikkoja yhteensä 373 ajoneuvolle. Talossa on 5 kerrosta sekä 3 porrashuonetta joissa 6 hissiä.
Kiinteistölle suoritetut peruskorjaukset viimeisen 10-vuoden aikana:
- 2010 Kamera ja kulunvalvontajärjestelmien asentaminen
- 2010 Lämmityspattereiden uusiminen
- 2011 Asbestikartoitus
- 2011 Ilmanvaihdon puhdistus ja säätö
- 2014 Julkisivun peruskorjaus
- 2014 Rakennuksen ikkunoiden uusiminen
- 2016 Vesikaton kattokaivojen uusiminen
- 2017 Väestönsuojien laitteistojen huolto ja uusiminen
- 2018 Vesi- ja viemärijärjestelmien uusiminen ja peruskorjaus
- 2018 Ilmanvaihtokojeiden uusiminen
- 2018 Sähkönousujen uusiminen ryhmäkeskuksille
- 2019 Lämmönjakokeskuksen uusiminen
- 2019 Ilmanvaihtohormien tiivistys
- 2019 Patteriverkoston tasapainotus ja säätö
- 2019 Vesikaton kuntotutkimus
- 2020 Talon aulatilojen saneeraus
- 2020 Hissikorien ja ovien pinnoitus
- 2020 Sähköautojen latausasemien asentaminen sekä autosähkötolppien uusinta
- Hoitovastike 5.00/m2 = 740;-/kk (alv 0%)
- Yhtiö omistaa 1.855 m2 talon tiloista, joista saadaan vuokratuloja n. 360.000,- (2019).
Sijainti: Haaga, Hämeenlinnan-väylän varrella
Perustiedot
Tyyppi:
Toimisto
Sopimustyyppi:
Myydään
Osoite:
Nuijamiestentie 5, 00400 Helsinki
Kaupunginosa:
Haaga
Myyntihinta:
219 000 €
Tilan koko
Kokonaispinta-ala:
148 m²
Rakennustiedot
Rakennusvuosi:
1973
Energialuokka:
C
Lisätiedot
Kerros:
2 / 3
Ympäristö
Pysäköinti:
Erillinen pysäköintirakennus sekä pihapysäköintitiloja, yhteensä 373 pysäköintipaikkaa
Lähipalvelut:
Lähellä useita lounasravintoloita
Liikenneyhteydet:
HKL, Jokeriradan pysäkki rakenteilla 400 metrin etäisyydelle
Kartta
Tietoa ilmoittajasta

Senaatin Notariaatti Oy LKV
Näytä kaikki saman ilmoittajan kohteetLämmittäjänkatu 4 A
00880
HELSINKI






















