Uudet käyttö- ja sopimusehdot
Päivitämme käyttö- ja sopimusehtojamme. Uudet ehdot ovat voimassa 1.5.2025 alkaen. Tutustu ehtoihin
Lundinkatu 12 Keskusta, Porvoo
06100Tyyppi
Liiketila
Koko
495 m²
Kerros
2 / 2
Vuokra
10,08 €/m²/kk
Saatavilla
Heti vapaa
Liiketila Porvoon parhaalta paikalta vuokrattavana!
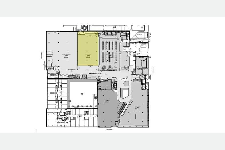
Kauppakeskus Lundissa on vuokrattavana laadukas, erinomaisessa kunnossa oleva, noin 495 m²:n liiketila. Huoneisto on merkitty pohjakuvaan keltaisella värillä.
Tila on keskeisellä paikalla kauppakeskuksen toisessa kerroksessa. Rakennuksessa on sekä hissi että liukuportaat.
Myymälätilan käytävän puoleinen seinä on kokonaan lasia, joten näyteikkunatilaa riittää! Vuokralaisella on käytössään myös sosiaalitilat.
Kauppakeskus Lundi on Porvoon keskeisin kauppapaikka aivan torin laidalla! Vilkkaassa kauppakeskuksessa on kaksi isoa pysäköintihallia ja kadun vastakkaisella puolella on iso parkkipaikka.
Soita ja kysy lisää!
Kohdetiedot
Sijainti
Osoite: Lundinkatu 12, 06100 Porvoo
Kaupunginosa: Keskusta
Ympäristö: Keskustan ja kauppakeskuksen kaikki palvelut
Rakennus/huoneisto
Pinta-ala: 495 m² + mahdollisuus yhteisiin sosiaalitiloihin
Huoneistoselitelmä: Myymälätila
Kunto, varusteet ja palvelut: Erinomainen kunto, hyvä valaistus, isot näyteikkunat, hissi, liukuportaat
Kerros: 2. krs
Pysäköinti: Autohallissa, kadulla, pysäköintipaikalla
Vapautuu: Heti vapaa
Vuokrahinta ja kulut
Kuukausivuokra: 4’990 €/kk + alv (sis. hoitovuokran)
Sähkömaksu: Mittauksen mukaan
Vesimaksu: Sisältyy vuokraan
Lämmitys ja jäähdytys: Sisältyy vuokraan
Muut kulut: Kauppiasyhdistysmaksu


