Uudet käyttö- ja sopimusehdot
Päivitämme käyttö- ja sopimusehtojamme. Uudet ehdot ovat voimassa 1.5.2025 alkaen. Tutustu ehtoihin
Tammiston Kauppatie 8 Tammisto, Vantaa
01510Tyyppi
Toimisto
Koko
260 m²
Vuokra
11,5 €/m²/kk
Vuokrataan toimistotilaa Tammistosta!
Ison kiinteistön toisessa kerroksessa on vuokrattavana hyvää toimistotilaa kaikkiaan noin 260 m². Viihtyisät ja toimivat toimistotilat pitävät huolen toimivasta työpäivästä. Kohde sijaitsee hyvien kulkuyhteyksien päässä vilkkaassa Tammistossa!
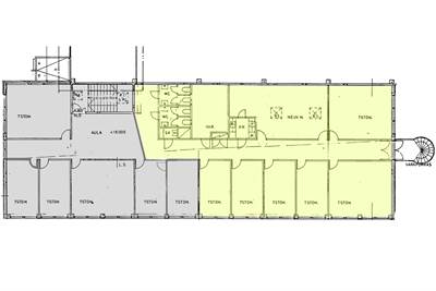
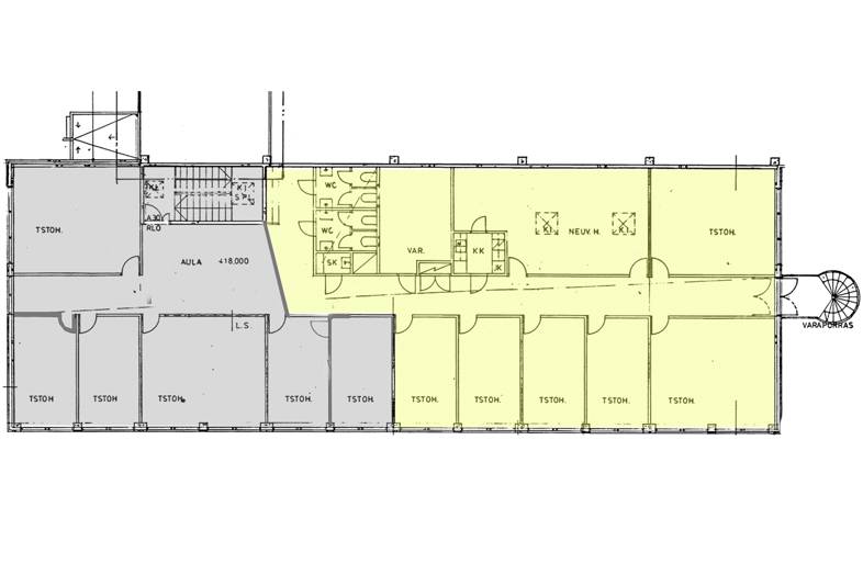
Toimistohuoneiden lisäksi tiloista löytyy yhteiset sosiaali- ja wc-tilat. Siistit pinnat ja hyvät tilat monenlaisille yrityksille. Talossa on tehty paljon erilaisia korjaus- ja perusparannustöitä. Vuokrattavat tilat on merkittynä pohjakuvaan keltaisella värillä.
Iso asfaltoitu piha, jossa hyvin paikoitustilaa.
Erinomainen sijainti Tammistossa aivan Tuusulanväylän kupeessa. Täältä on nopeat liikenneyhteydet niin Helsinki-Vantaan lentokentälle kuin Helsingin keskustaankin.
Monipuoliset ja hyvät tilat yritykselle kuin yritykselle!
Kohdetiedot
Sijainti
Katuosoite: Tammiston Kauppatie 8, 01510 Vantaa
Kaupunginosa: Tammisto
Ympäristö: Ostospuisto Tammisto
Rakennus/huoneisto
Pinta-alat: Noin 260 m²
Huoneistoselitelmä: Iso toimistotila, yhteiset sosiaali- ja wc-tilat
Kunto: Hyvä kunto
Varusteet ja palvelut: Tammiston Ostospuiston kaikki palvelut
Vapautuu: Heti vapaa
Vuokrahinta ja kulut
Kuukausivuokra: 2’980 €/kk + alv
Sähkömaksu: Mittauksen mukaan
Vesimaksu: Sisältyy vuokraan
Lämmitys: Sisältyy vuokraan
Muuta: Minimisopimuskausi 12 kk, vakuus 3 kk:n vuokraa vastaava summa, luottotietojen oltava kunnossa
Perustiedot
Tilan koko
Tilan jakautuminen tilatyyppien mukaan
| Tilatyypit | Min m² | Max m² | €/m²/kk |
|---|---|---|---|
| Toimisto | 260 | 11,5 |


