Salmisaarenaukio 1 Salmisaari, Helsinki

00180

Tyyppi

Toimisto

Koko

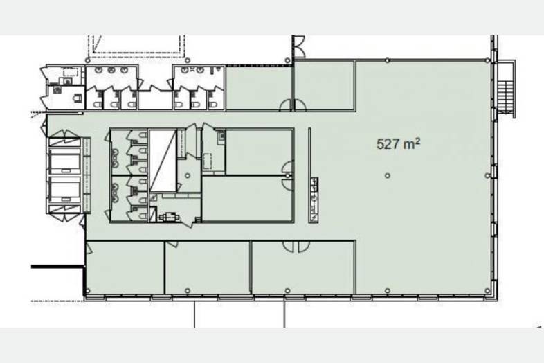
527 m²

Kerros

1 / 6

Vuokra

Kiinteistön ensimmäisessä kerroksessa oleva suuri toimistotila jossa on kaikki mitä pääkonttori toimistotilalta tavitsee. Nykyjaolla on toimistossa on 7 toimistohuonetta ja suuri avotila, kopiontihuone ja varasto. Suuri avokeittiö ja sosiaalitila. Tilassa on 6 kpl vessoja. Toimistossa on on suuri huonekorkeus, huippulaadukkaat pintamateriaalit ja korkeatasoinen talotekniikka. Upeat merinäköalat suurista ikkunoista.

Perustiedot

Tyyppi:
Toimisto
Sopimustyyppi:
Vuokrataan
Osoite:
Salmisaarenaukio 1, 00180 Helsinki
Kaupunginosa:
Salmisaari

Tilan koko

Kokonaispinta-ala:
527 m²

Rakennustiedot

Rakennusvuosi:
2007
Energialuokka:
Ei lain edellyttämää energiatodistusta

Lisätiedot

Kerros:
1 / 6

Ympäristö

Pysäköinti:
Lämmin pysäköintihalli sekä pyöräparkki.
Lähipalvelut:
Kaikki kattavat business parkin palvelut kuten aulapalvelu, lounasravintola Factory, vuokrattavat neuvottelu- ja kokoustilat sekä sosiaali- ja suihkutilat työmatkapyöräilijöille. Kiinteistön vieressä myös Salmissaaren liikuntakeskus kaikkineen palveluineen. Ruoholahdessa on myös useita ruokakauppoja, lääkäriasemia, kahviloita ja ravintoloita.
Liikenneyhteydet:
Bussipysäkki 10 m Raitiovaunupysäkki 500 m Metroasema 1 km

Kartta

Ota yhteyttä

Comreal Oy logotyyppi
JN
Joonas Nilsson
Näytä puhelinnumero

Lähetä yhteydenottopyyntö

Tietosuojaseloste
This site is protected by reCAPTCHA and the Google Privacy Policy and Terms of Service apply.