Uudet käyttö- ja sopimusehdot
Päivitämme käyttö- ja sopimusehtojamme. Uudet ehdot ovat voimassa 1.5.2025 alkaen. Tutustu ehtoihin
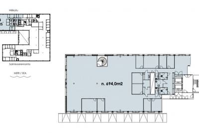
Salmisaarenaukio 1 Salmisaari, Helsinki
00180Tyyppi
Toimisto
Koko
658 m²
Kerros
4 / 6
Vuokra
Kysy hintaa!
Pääkonttoritason toimisto meren äärellä Salmisaaressa.
Tilat on varustettu korkeatasoisilla materiaaleilla sekä uusimmalla talotekniikalla. Tilat räätälöidään uudelle käyttäjälle sopivaksi. Kiinteistössä on aulapalvelu, neuvottelutiloja, lounasravintola sekä sosiaalitilat työmatkapyöräilijöille.
Pysäköintitilat ajoneuvoille ja polkupyörille sijaitsevat maanalaisessa lämmitetyssä parkkihallissa. Ruoholahden metroasemalle on bussikuljetus talon edestä 5-min välein, myös kaupunkipyöräasema palvelee lähikorttelissa. Ota yhteyttä ja sovi esittely, vuokrauspalvelumme on tilanhakijoille maksuton.
BREAM sertifioitu toimistotalo.
Kansainvälinen toimistokeskittymä.
Sijainti: Salmisaari
Perustiedot
Tyyppi:
Toimisto
Sopimustyyppi:
Vuokrataan
Osoite:
Salmisaarenaukio 1, 00180 Helsinki
Kaupunginosa:
Salmisaari
Tilan koko
Kokonaispinta-ala:
658 m²
Rakennustiedot
Rakennusvuosi:
2007
Energialuokka:
Ei lain edellyttämää energiatodistusta
Lisätiedot
Kerros:
4 / 6
Muita tietoja:
Kiinteistön omistaa Castellum.
Ympäristö
Pysäköinti:
Maanalainen pysäköintihalli.
Lähipalvelut:
Talossa lounasravintola, vieressä Salmisaaren liikuntakeskus.
Liikenneyhteydet:
Metro, bussi, ratikka.
Kartta
Tietoa ilmoittajasta

Senaatin Notariaatti Oy LKV
Näytä kaikki saman ilmoittajan kohteetLämmittäjänkatu 4 A
00880
HELSINKI
























