Uudet käyttö- ja sopimusehdot
Päivitämme käyttö- ja sopimusehtojamme. Uudet ehdot ovat voimassa 1.5.2025 alkaen. Tutustu ehtoihin
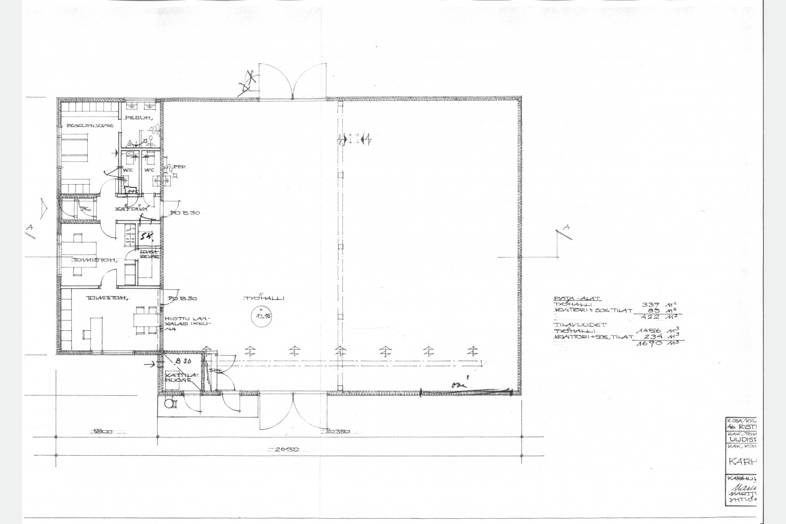
Asentajankatu 7 Ristinkallio, Kotka
48800Tyyppi
Tuotantotila
Koko
422 m²
Myyntihinta
280 000 €
Tuotantohalli joka mahdollistaa monenlaisen toiminnan. Halliin käynti kolmesta ovesta läpiajo mahdollisuudella. Siistikuntoiset toimisto-/ sos.tilat. Etupiha asfaltoitu.
Perustiedot
Tyyppi:
Tuotantotila
Sopimustyyppi:
Myydään
Osoite:
Asentajankatu 7, 48800 Kotka
Kaupunginosa:
Ristinkallio
Velaton hinta:
280 000 €
Myyntihinta:
280 000 €
Rakennustiedot
Rakennusvuosi:
1982
Lisätiedot
Muita tietoja:
Lisätietoja rakennuksesta: Pintamateriaalit: Maalattu levy.
Kartta
Ota yhteyttä
Aninkainen KotkaKotkan Kiinte
Asuntomyymälä
Näytä puhelinnumero
Näytä puhelinnumero
Lähetä yhteydenottopyyntö
Tietoa ilmoittajasta
Aninkainen.fi Kotka / Kotkan Kiinteistökeskus Oy
Näytä kaikki saman ilmoittajan kohteetKeskuskatu 25
48100
KOTKA








