Uudet käyttö- ja sopimusehdot
Päivitämme käyttö- ja sopimusehtojamme. Uudet ehdot ovat voimassa 1.5.2025 alkaen. Tutustu ehtoihin
Kasarmikatu 25 Kaartinkaupunki, Helsinki
00130Tyyppi
Toimisto
Koko
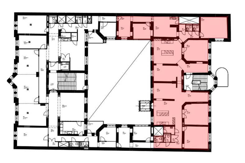
350 m²
Kerros
3
Vuokra
Kysy hintaa!
Edustava toimistohuoneisto historiallisessa K5 arvokiinteistöstä, 3. kerroksesta.
Talo on juuri saneerattu ja varustettu modernilla tekniikalla. Huonekohtaisesti säädettävä lämmitys ja jäähdytys toteutetaan kaukokylmä ja kaukolämpöverkkoon liittyen. Talon alakerrassa on kokouskeskus, jossa on useita erikokoisia neuvotteluhuoneita ja noin 200 hengen konferenssisali. Uudistettu porttikäytävä johtaa kadulta avaralle, valoisalle, katetulle ja lämpimälle sisäpihalle, jota käytetään vastaanoton ja lobbyn lisäksi kiinteistön henkilökunnan lounas- ja kahvilatilana. Ohessa havainnollistavia kuvia kiinteistöstä.
Kasarmikatu 25 sijaitsee arvostetulla toimistoalueella Eteläesplanadin ja Kasarmintorin välissä Helsingin ydinkeskustassa. Esplanadin ja Tähtitorninmäen puistot, Kasarmintori ja meren läheisyys tekevät alueesta vehreän ja viihtyisän. Kauppatorin kuhinaan on vain kahden korttelin kävelymatka. Alueella on laadukkaita ravintoloita, kansainvälisiä konsulltitoimistoja, finanssialan toimijoita ja lakiasiantoimistoja.
Lisätietoja ja kohde-esittelyt 020 7290 710, lisää kohteita www.premises.fi.
Kohteella ei ole lain edellyttämää energiatodistusta tai energialuokka ei tiedossa.
Perustiedot
Tyyppi:
Toimisto
Sopimustyyppi:
Vuokrataan
Osoite:
Kasarmikatu 25, 00130 Helsinki
Kaupunginosa:
Kaartinkaupunki
Tilan koko
Kokonaispinta-ala:
350 m²
Lisätiedot
Kerros:
3
Ympäristö
Liikenneyhteydet:
Kasarmikatu 25:een kävelee rautatieasemalta noin 10 minuutissa. Kaisaniemen metroasemalle on matkaa vain 200 metriä. Raitiovaunu- ja bussipysäkit sijaitsevat noin 150 metrin päässä.
Omalla autolla on kätevät yhteydet sekä itään että länteen, ja Kasarmintorin, Erottajan ja Tähtitorinmäen parkkihallit ovat aivan nurkan takana, korkeintaan muutaman korttelin päässä rakennuksesta. Pyöräily- ja kävelyreitiksi voi valita eri puolilta kaupunkia meren rantaa kulkevat väylät tai urbaanimmat vaihtoehdot kaupungin sydämessä.
Kartta
Tietoa ilmoittajasta

CRE PREMISES
Näytä kaikki saman ilmoittajan kohteetVantaankoskentie 14
01670
VANTAA
















