Uudet käyttö- ja sopimusehdot
Päivitämme käyttö- ja sopimusehtojamme. Uudet ehdot ovat voimassa 1.5.2025 alkaen. Tutustu ehtoihin
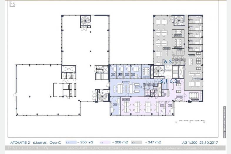
Atomitie 2 Pitäjänmäki, Helsinki
00370Tyyppi
Toimisto
Koko
500 - 1 500 m²
Kerros
5 / 7
Vuokra
Kysy hintaa!
Bolero on nykyaikainen ja viihtyisä toimistokeskus näkyvällä sijainnilla Pitäjänmäentien varrella. Talossa on vastaanotto- ja aulapalvelu, lounasravintola, neuvottelutilat, kuntosali ym. oheispalveluita, sekä runsaasti pysäköintitilaa myös sähköautoille. Toimistotilat räätälöidään yksilöllisesti käyttäjän tarpeiden mukaan. Tämä viidennen kerroksen valoisa 1500m2 toimistotilakokonaisuus tarjoaa viihtyisän työympäristön noin 40-120:lle hengelle. Tilat on jaettavissa alkaen 500m2 sosissa. Talon maanalaisessa kerroksessa on lämmin autohalli, kiinteistöllä on lisäksi parkkitalo sekä pihapysäköintipaikkoja. Juna-asema sijaitsee talon edessä. Ota yhteyttä ja sovi esittely, palvelumme on tilanhakijoille ilmainen. Puh: 09 7745 100.
Bolero Business Park.
Toimisto ja teollisuusalue
Sijainti: Pitäjänmäentien ja Kaupintien risteyksessä.
Perustiedot
Tyyppi:
Toimisto
Sopimustyyppi:
Vuokrataan
Osoite:
Atomitie 2, 00370 Helsinki
Kaupunginosa:
Pitäjänmäki
Tilan koko
Kokonaispinta-ala:
1500 m²
Tilan jakautuminen tilatyyppien mukaan
| Tilatyypit | Min m² | Max m² | €/m²/kk |
|---|---|---|---|
| Toimisto | 500 | 1 500 |
Rakennustiedot
Rakennusvuosi:
2004
Energialuokka:
Ei lain edellyttämää energiatodistusta
Lisätiedot
Kerros:
5 / 7
Muita tietoja:
Katso pohjakuvia PDF liitetiedostosta.
Ympäristö
Pysäköinti:
Kellarissa lämmin autohalli, lisäksi parkkitalo sekä pihapysäköintipaikkoja.
Lähipalvelut:
Talossa aulapalvelu, neuvottelutilaa sekä lounasravintola ja kuntosali.
Liikenneyhteydet:
HKL, Valimon juna-asema on talon vieressä
Dokumentit
Kartta
Tietoa ilmoittajasta

Senaatin Notariaatti Oy LKV
Näytä kaikki saman ilmoittajan kohteetLämmittäjänkatu 4 A
00880
HELSINKI














































