Uudet käyttö- ja sopimusehdot
Päivitämme käyttö- ja sopimusehtojamme. Uudet ehdot ovat voimassa 1.5.2025 alkaen. Tutustu ehtoihin
Uudenmaankatu 16-20 Punavuori, keskusta, Helsinki
00120Tyyppi
Toimisto
Koko
756 m²
Vuokra
Kysy hintaa!
Saatavilla
Heti vapaa
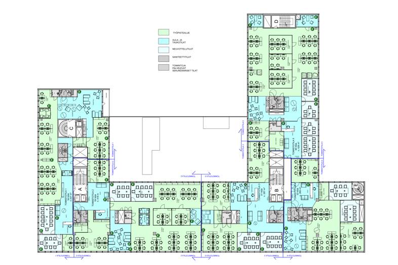
Rakennuksen kuvaus:
Punavuoren Dekin täysin uudistetut toimitilat ydinkeskustassa, Annankadun ja Uudenmaankadun kulmassa. Talo on täysin saneerattu 2019-2021 ja sen avarissa, valoisissa tiloissa on tehokas pohjaratkaisu sekä nykyaikainen tilatekniikka. Suuri kerroskoko mahdollistaa hyvin joustavan toteutuksen aina 200 työpisteeseen per kerros. Kerrokset ovat myös jaettavissa tilatarpeen mukaan. Talon erikoisuutena keskustassa iso oma parkkihalli. Lisäksi pyöräparkki ja yhteissuihkutilat, sekä hyvät palvelut alueella. Kampin metrolle vain 8 min kävelymatka.
Tilan kuvaus:
Täysin saanerattu talo, jossa tilat rakennetaan yrityksellesi betonilta. Pohja on joustava ja mahdollistaa kaikki variaatiot täydestä koppikonttorista avotilaan, ja kohteelle räätälöidään yrityksen toimintaa parhaiten palveleva toimisto. Vuokrattavana erilaisia tilakokonaisuuksia ja mahdollista esimerkiksi vuokrata noin 756m² kokoinen toimisto talon toisesta kerroksesta. Tila sijaitsee talon Uudenmaankadun ja Annankadun puoleisessa kulmassa. 756m² tila talon A-osassa, joka valmistui saneerauksesta 2021. Tilat ovat muuttovalmiit vuokralaismuutoksien puitteissa.
Kerros: 2
Perustiedot
Tyyppi:
Toimisto
Sopimustyyppi:
Vuokrataan
Osoite:
Uudenmaankatu 16-20, 00120 Helsinki
Kaupunginosa:
Punavuori, keskusta
Tilan koko
Kokonaispinta-ala:
756 m²
Rakennustiedot
Kiinteistön nimi:
Toimistotila
Lisätiedot
Saatavilla:
Heti vapaa
Kartta
Tietoa ilmoittajasta
JLL Jones Lang LaSalle Finland Oy
Näytä kaikki saman ilmoittajan kohteetKeskuskatu 7, 4. krs
00100
HELSINKI






















