Uudet käyttö- ja sopimusehdot
Päivitämme käyttö- ja sopimusehtojamme. Uudet ehdot ovat voimassa 1.5.2025 alkaen. Tutustu ehtoihin
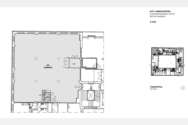
Pursimiehenkatu 29-31 Punavuori, Helsinki
00150Tyyppi
Toimisto
Koko
341 m²
Kerros
5
Vuokra
Kysy hintaa!
Upea valoisa avotila suurilla ikkunoilla.
Merikortteli on omaleimainen ja kulttuurihistoriallisesti ainutlaatuinen toimintaympäristö, jossa on aitoa kaupunkilaishenkeä. Merikortteli on alunperin rakennettu lähinnä teollisuustuotantoa varten ja peruskorjattu korkeatasoisiksi toimisto-, studio- ja työtiloiksi, unohtamatta säilyttää teollista jylhyyttä. Merikortteli käsittää 28 000 m2 kuudessa maanpäällisessä kerroksessa.
Talon oma arkkitehti avustaa uusien toimitilojen suunnittelussa ja sovittamisessa asiakkaan tarpeiden mukaisesti niin että tilat tulevat mahdollisimman tehokkaaseen käyttöön. Kerrosten 18-metrinen leveys yhdistettynä suureen huonekorkeuteen tarjoaa lähes rajattomat mahdollisuudet tilojen muokkaukseen asiakkaan tarpeiden ja toiveiden mukaisesti.
Merikorttelilla on runsaasti pysäköintimahdollisuuksia sekä korttelin omassa parkkihallissa että läheisissä parkkihalleissa. Vieraskäyttöön sisäpihalla on kaksi mittarikäyttöistä pysäköintipaikkaa.
Lisätiedot: 020 7290 170, lisää kohteita: www.premises.fi
Kohteella ei ole lain edellyttämää energiatodistusta tai energialuokka ei tiedossa.
Perustiedot
Tyyppi:
Toimisto
Sopimustyyppi:
Vuokrataan
Osoite:
Pursimiehenkatu 29-31, 00150 Helsinki
Kaupunginosa:
Punavuori
Tilan koko
Kokonaispinta-ala:
341 m²
Lisätiedot
Kerros:
5
Ympäristö
Liikenneyhteydet:
Merikortteli sijaitsee Helsingin Punavuoressa, 15 minuutin kävelymatkan (2 km) päässä Rautatieasemalta. Raitiovaunulle alle 100 metriä.
Kartta
Tietoa ilmoittajasta

CRE PREMISES
Näytä kaikki saman ilmoittajan kohteetVantaankoskentie 14
01670
VANTAA


























