Uudet käyttö- ja sopimusehdot
Päivitämme käyttö- ja sopimusehtojamme. Uudet ehdot ovat voimassa 1.5.2025 alkaen. Tutustu ehtoihin
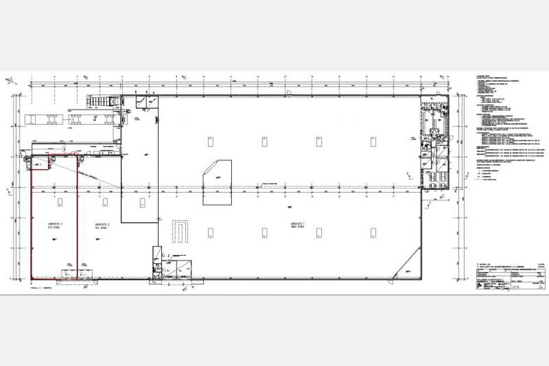
Myllärinkatu 10 Lappeenranta
53100Tyyppi
Liiketila
Koko
372 m²
Vuokra
Kysy hintaa!
Myllymäen kauppa-alueella oleva katutason siisti ja toimiva liiketila.
Perustiedot
Tyyppi:
Liiketila
Sopimustyyppi:
Vuokrataan
Osoite:
Myllärinkatu 10, 53100 Lappeenranta
Tilan koko
Kokonaispinta-ala:
372 m²
Rakennustiedot
Energialuokka:
Ei lain edellyttämää energiatodistusta
Lisätiedot
Muita tietoja:
Samassa kiinteistössä myös XXL sport outdoor Lappeenranta.
Ympäristö
Pysäköinti:
Kiinteistön pihalla on runsaasti parkkipaikkoja.
Liikenneyhteydet:
Lappeenrannan keskusta 3,6 km
Lappeenrannan lentokenttä 4,2 km
Bussipysäkki 800 m
Tietoa ilmoittajasta
Comreal Oy
Näytä kaikki saman ilmoittajan kohteetLäkkisepänkuja 6
00620
Helsinki








