Uudet käyttö- ja sopimusehdot
Päivitämme käyttö- ja sopimusehtojamme. Uudet ehdot ovat voimassa 1.5.2025 alkaen. Tutustu ehtoihin
Bulevardi 32 Keskusta, Helsinki
00180Tyyppi
Liiketila
Koko
114 m²
Kerros
1
Vuokra
Kysy hintaa!
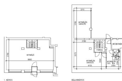
Liiketila, jossa isot ikkunat Albertinkadulle. Katutasossa n. 50 m2 ja kellaritila n. 64,5 m2. Erinomaiset kulkuyhteydet. Tila ei sovellu ravintola- tai kahvilatoimintaan.
Lisätiedot 020 7290 710 ja lisää kohteita premises.fi
Energialuokka E.
Perustiedot
Tyyppi:
Liiketila
Sopimustyyppi:
Vuokrataan
Osoite:
Bulevardi 32, 00180 Helsinki
Kaupunginosa:
Keskusta
Tilan koko
Kokonaispinta-ala:
114 m²
Lisätiedot
Kerros:
1
Ympäristö
Liikenneyhteydet:
Hyvät liikenne yhteydet Helsingin keskustassa.
Kartta
Tietoa ilmoittajasta

CRE PREMISES
Näytä kaikki saman ilmoittajan kohteetVantaankoskentie 14
01670
VANTAA








