Uudet käyttö- ja sopimusehdot
Päivitämme käyttö- ja sopimusehtojamme. Uudet ehdot ovat voimassa 1.5.2025 alkaen. Tutustu ehtoihin
Linnoitustie 4 B, Leppävaara Leppävaara, Espoo
02600Tyyppi
Toimisto
Koko
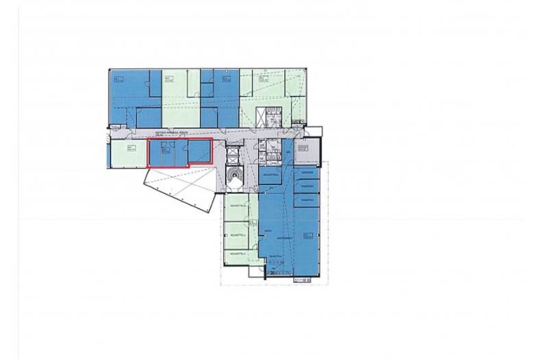
52 m²
Vuokra
Kysy hintaa!
5. kerroksen toimistotila Quartetto Business Parkin talosta.
Yrityspuiston toimitilakonsepti ja siihen liittyvä palvelukokonaisuus on suunniteltu vaativan yrityksen tarpeisiin.
Huoneistot ovat muunneltavissa huonekonttorista combikonttoriksi tai avotilaksi.
Perustiedot
Tyyppi:
Toimisto
Sopimustyyppi:
Vuokrataan
Osoite:
Linnoitustie 4 B, Leppävaara, 02600 Espoo
Kaupunginosa:
Leppävaara
Tilan koko
Kokonaispinta-ala:
52 m²
Rakennustiedot
Energialuokka:
D
Ympäristö
Lähipalvelut:
Kiinteistössä on laajat ja monipuoliset nykyaikaisen Business Parkin palvelut.
Kiinteistössä on myös erillisiä kokous- ja edustustiloja.
Kartta
Tietoa ilmoittajasta
Comreal Oy
Näytä kaikki saman ilmoittajan kohteetLäkkisepänkuja 6
00620
Helsinki
















