Majavantie 10 Riihikallio, Tuusula

04320

Tyyppi

Tuotantotila

Koko

90 m²

Kerros

1

Vuokra

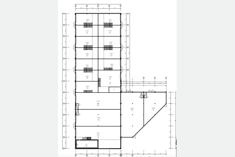
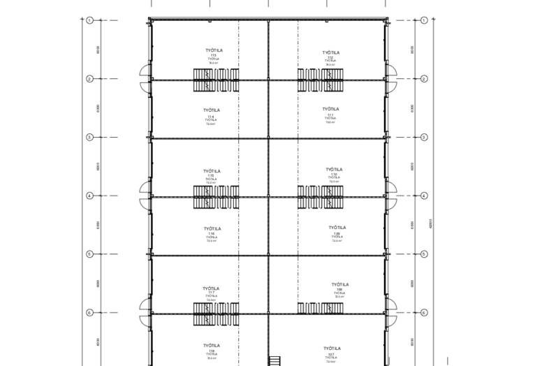
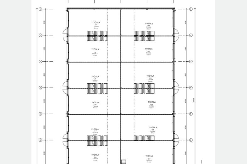
Modernia monitoimitilaa Tuusulassa. Majavantien kohteiden perusyksikkö on kooltaan 90,5m2. Se koostuu 72m2 varasto-/tuotantotilasta sekä 18,5m2 parvitilasta, jossa omat sosiaalitilat. Jokaisen yksikön perusvarusteluihin kuuluu erillinen toimisto- ja taukotila, valaistus, sähköt 16A 3-vaihepistorasialla ja valovirtapistokkeilla, vesipiste, wc-tila suihkuvarauksella, lattiakaivo hiekan- ja öljynerottimella, sähkökäyttöinen nosto-ovi, koneellinen ilmanvaihto lämmöntalteenotolla ja pysäköintipaikat tontilla. Tilassa on myös nosto-ovi. Monitoimitilaa on yhteensä noin 2498 m2. Kiinteistön tilat on suunniteltu joustaviksi niin, että yksiköitä on helppo muunnella, jakaa ja yhdistellä. Niiden pohja- ja LVI-ratkaisut mahdollistavat muokattavuuden eri toimialojen käyttäjien tarpeisiin, esimerkiksi tilat voivat toimia tuotanto-, varasto- ja näyttelytiloina. Majavantie 10 on monitoimitila-kiinteistö, joka valmistui keväällä 2020. Se sijaitsee Tuusulan Riihikalliossa, Tuusulanväylän vieressä. Kysy lisää numerosta 044 723 4700 tai info@bref.fi. Palvelumme on tilanhakijoille ilmainen.

Perustiedot

Tyyppi:
Tuotantotila
Sopimustyyppi:
Vuokrataan
Osoite:
Majavantie 10, 04320 Tuusula
Kaupunginosa:
Riihikallio

Tilan koko

Kokonaispinta-ala:
90 m²

Rakennustiedot

Energialuokka:
B

Lisätiedot

Kerros:
1

Ympäristö

Lähipalvelut:
Tuusulan palvelut lyhyen ajomatkan päässä. Riihikallion alueella toimivat mm. Lidl, Kodin terra ja Ramirent.
Liikenneyhteydet:
Hyvät kulkuyhteydet julkisella liikenteellä ja omalla autolla. Tuusulanväylän läheisyydessä. Kiinteistön pihalla on pysäköintipaikkoja.

Kartta

Ota yhteyttä

Bureau Real Estate Finland Oy logotyyppi
Bureau Real Estate Finland Oy

Lähetä yhteydenottopyyntö

Tietosuojaseloste
This site is protected by reCAPTCHA and the Google Privacy Policy and Terms of Service apply.

Tietoa ilmoittajasta

Bureau Real Estate Finland Oy logotyyppi

Bureau Toimitilat on suomalainen toimitilavälitysyritys. Olemme tehneet tuloksellista välitystyötä jo vuodesta 2010. Toimintamme lähtökohtana ovat asiakaskeskeisyys ja ratkaisulähtöisyys. Haluamme olla nyt ja tulevaisuudessa yritysten luotettavin kumppani toimitilojen hankintaprosessissa. Olemme tilanhakijan apuna koko toimitilojen hankintaprosessin ajan aina tilatarpeen kartoituksesta sopimuksen allekirjoittamiseen asti. Palvelumme on tilanhakijalle ilmainen. Meiltä saat kaikki tarpeisiinne soveltuvat toimitilavaihtoehdot yhdellä yhteydenotolla.

Ilmoittajan muut kohteet