Uudet käyttö- ja sopimusehdot
Päivitämme käyttö- ja sopimusehtojamme. Uudet ehdot ovat voimassa 1.5.2025 alkaen. Tutustu ehtoihin
Sarkatie 2 Varisto, Vantaa
01720Tyyppi
Tuotantotila
Koko
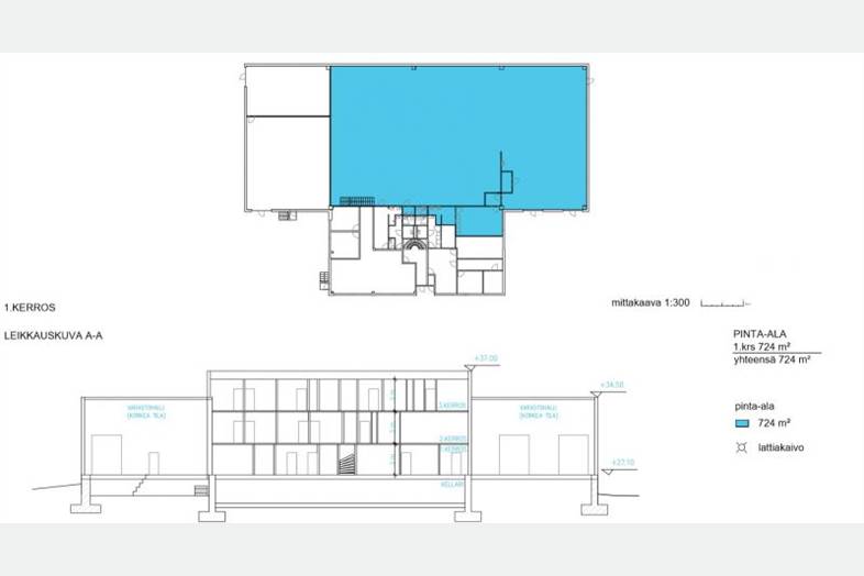
926 m²
Vuokra
Kysy hintaa!
Vuokrataan Vantaan Varistosta, maantason 782m2 6 m korkea varastotila ja sen yläpuolella oleva 144m2 toimistotila. Varastoon on sisäänajoyhteys nosto-ovella sekä kuormaussilta tavaran lastaukseen. Lattiakantavuus 1500 kg/m2. Hallissa on myös lattiakaivot öljynerotuksella. SOITA ja SOVI ESITTELY: 09 7745 100.
Pienteollisuus,- varastointi,- toimisto
Sijainti: Vihdintien ja Martinlaakson risteyksessä, kehä III läheisyydessä.
Perustiedot
Tyyppi:
Tuotantotila, Varastotila, Toimisto
Sopimustyyppi:
Vuokrataan
Osoite:
Sarkatie 2, 01720 Vantaa
Kaupunginosa:
Varisto
Tilan koko
Kokonaispinta-ala:
926 m²
Tilan jakautuminen tilatyyppien mukaan
| Tilatyypit | Min m² | Max m² | €/m²/kk |
|---|---|---|---|
| Tuotantotila | 782 | ||
| Varastotila | 782 | ||
| Toimisto | 144 |
Rakennustiedot
Energialuokka:
Ei lain edellyttämää energiatodistusta
Ympäristö
Pysäköinti:
Kiinteistön pihalla.
Lähipalvelut:
Alueella lukuisia lounasravintoloita.
Liikenneyhteydet:
Vihdintien ja Martinkyläntien bussipysäkeille on lyhyt kävelymatka.
Tietoa ilmoittajasta

Senaatin Notariaatti Oy LKV
Näytä kaikki saman ilmoittajan kohteetLämmittäjänkatu 4 A
00880
HELSINKI


























