Uudet käyttö- ja sopimusehdot
Päivitämme käyttö- ja sopimusehtojamme. Uudet ehdot ovat voimassa 1.5.2025 alkaen. Tutustu ehtoihin
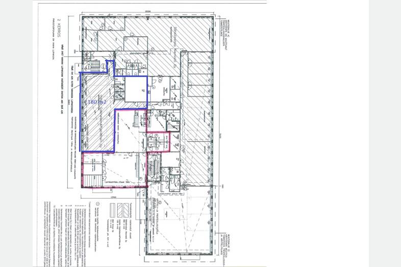
Teerisuonkuja 4 Malmi, Helsinki
00700Tyyppi
Toimisto
Koko
180 m²
Kerros
2
Vuokra
Kysy hintaa!
Vuokrataan noin 180m2 toimisto- / näyttelytilaa, 2 krs.
2 wc:tä ja suihku. Tilaan tavarahissi.
Lisätiedot Mika Loppi p. 045 26 16555
Kohteella ei ole lain edellyttämää energiatodistusta.
Perustiedot
Tyyppi:
Toimisto
Sopimustyyppi:
Vuokrataan
Osoite:
Teerisuonkuja 4, 00700 Helsinki
Kaupunginosa:
Malmi
Tilan koko
Kokonaispinta-ala:
180 m²
Lisätiedot
Kerros:
2
Dokumentit
Kartta
Tietoa ilmoittajasta

CRE PREMISES
Näytä kaikki saman ilmoittajan kohteetVantaankoskentie 14
01670
VANTAA












