Uudet käyttö- ja sopimusehdot
Päivitämme käyttö- ja sopimusehtojamme. Uudet ehdot ovat voimassa 1.5.2025 alkaen. Tutustu ehtoihin
Tikkurilantie 146 Viinikkala, Vantaa
01370Tyyppi
Toimisto
Koko
140 - 680 m²
Vuokra
Kysy hintaa!
Vielä seuraavat toimistokoot jäljellä;
2krs
469 m2 - Valoisaa ja jäähdytettyä kombi-toimistoa. Toimitilat ovat tarvittaessa jaettavissa ja muunneltavissa tarpeiden mukaan. Halutessa toimistoon saadaan tuotua tavaraa tavaralavahissillä, joten sopii erinomaisesti myös showroom käyttöön. Toimitiloista on tarvittaessa sisäyhteys kiinteistön varastotiloihin.
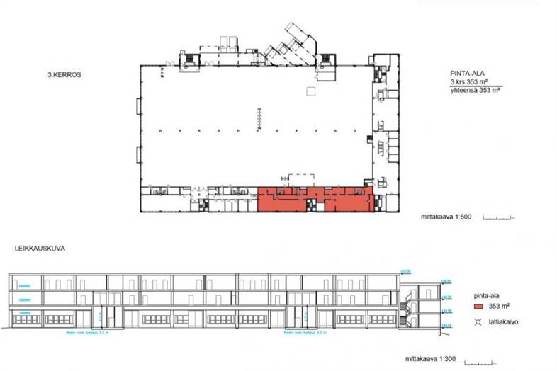
3 krs
140 m2 - avotoimisto, varastohuone, wc
180 m2 - avotoimisto, 2 kpl wc, 2 kpl varastohuonetta
4 krs
320 m2 - Valoisa ja jäähdytetty toimisto rakennuksen ylimmässä (4.krs) kerroksessa. Toimitilat ovat muunneltavissa tarpeiden mukaan. Toimistoista on tarvittaessa sisäyhteys kiinteistön varastotiloihin.
680 m2 - Valoisaa ja jäähdytettyä toimistoa. Nykytilanteessa toimisto on pääosin jaettu huoneiksi. Toimitilat ovat tarvittaessa jaettavissa ja muunneltavissa tarpeiden mukaan.
Perustiedot
Tyyppi:
Toimisto
Sopimustyyppi:
Vuokrataan
Osoite:
Tikkurilantie 146, 01370 Vantaa
Kaupunginosa:
Viinikkala
Tilan koko
Kokonaispinta-ala:
680 m²
Tilan jakautuminen tilatyyppien mukaan
| Tilatyypit | Min m² | Max m² | €/m²/kk |
|---|---|---|---|
| Toimisto | 140 | 680 |
Rakennustiedot
Energialuokka:
Ei lain edellyttämää energiatodistusta
Lisätiedot
Muita tietoja:
Kiinteistö sijaitsee Postin jakelukeskuksen vieressä Vantaan Viinikkalassa. Pihalta on erinomaiset yhteydet Kehä III:lle ja muille pääväylille. HKI-Vantaan lentokentälle on alle 10 minuutin ja Vuosaaren satamaan 20 minuutin ajomatka.
Ympäristö
Pysäköinti:
Kiinteistön parkkipaikalla on runsaasti pysäköintitilaa.
Lähipalvelut:
Lähialueella on mm. huoltoasema ja lounaspaikkoja. Kauppakeskus Jumbon palvelut ovat noin 5 minuutin ajomatkan päässä.
Liikenneyhteydet:
Kiinteistöltä on erinomaiset yhteydet Kehä III:lle ja muille pääväylille. HKI-Vantaan lentokentälle on alle 10 minuutin ja Vuosaaren satamaan 20 minuutin ajomatka.
Tietoa ilmoittajasta
Comreal Oy
Näytä kaikki saman ilmoittajan kohteetLäkkisepänkuja 6
00620
Helsinki










