Uudet käyttö- ja sopimusehdot
Päivitämme käyttö- ja sopimusehtojamme. Uudet ehdot ovat voimassa 1.5.2025 alkaen. Tutustu ehtoihin
Pohjoisesplanadi 37 Kluuvi, Helsinki
00100Tyyppi
Toimisto
Koko
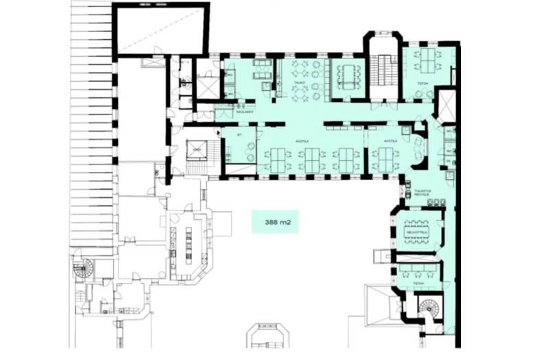
388 m²
Kerros
4
Vuokra
Kysy hintaa!
Pohjoisesplanadi 37 on Helsingin ydinkeskustan haluttu osoite liike-elämän, hallinnon ja kulttuurin kohtauspisteessä. Vilkas Esplanadi on parasta mahdollista ympäristöä menestyvälle yritykselle. Kaikki keskusta-alueen monipuoliset palvelut ovat lähettyvillä.
Taidokkaasti saneeratussa arvokiinteistössä on tasokasta liike- ja toimistotilaa, seitsemän kerrosta ja kellaritilat. Tilat on jaettavissa toimistomoduulijaon mukaisiin tiloihin, joiden huoneistomuutokset on mahdollista toteuttaa vanhan rakennuksen ehdoin. Talo on saneerattu nykyaikaisen talotekniikan vaatimustason täyttäväksi.
Lähin autoilijoita palveleva pysäköintihalli sijaitsee Kluuvissa, sisäänajo Kaisaniemestä tai Fabianinkadulta. Julkisen liikenteen yhteydet ovat vain lyhyen kävelymatkan päässä.
Vuokrattavana 4. kerroksen 390 m2 kokoinen toimisto.
Lisätietoja 020 7290 710, lisää kohteita www.premises.fi
Kohteella ei ole lain edellyttämää energiatodistusta tai energialuokka ei tiedossa.
Perustiedot
Tyyppi:
Toimisto
Sopimustyyppi:
Vuokrataan
Osoite:
Pohjoisesplanadi 37, 00100 Helsinki
Kaupunginosa:
Kluuvi
Tilan koko
Kokonaispinta-ala:
388 m²
Lisätiedot
Kerros:
4
Kartta
Tietoa ilmoittajasta

CRE PREMISES
Näytä kaikki saman ilmoittajan kohteetVantaankoskentie 14
01670
VANTAA












