Aleksanterinkatu 11 Helsinki

00100

Tyyppi

Liiketila

Koko

750 m²

Vuokra

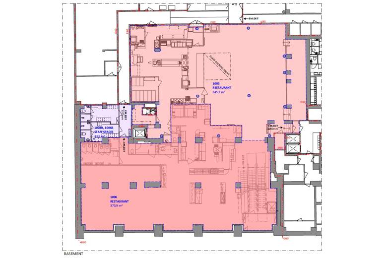
Kellarikerroksen ravintolatila primepaikalla!

Vuokrattavana kellarikerroksen 750 m2 liiketila huippusijainnilla Helsingin keskustassa, Aleksanterinkadun varrella! Kyseessä on primepaikka, jossa toimii tällä hetkellä ravintolaketjut Burger King ja Rax. Tila on jaettu kahteen osaan: 345 m² ja 371 m², jotka voidaan vuokrata erikseen tai yhdessä. Erinomainen tilaisuus liiketoiminnalle vilkkaalla sijainnilla, missä asiakasvirrat ovat taattuja. Liiketilojen vuokraus ja tiedustelut: C&W Retail Services, puh. 010 836 8418, retail.fi@cushwake.com. The First on primepaikalla, Helsingin ydinkeskustassa, Aleksin ja Kluuvin kulmassa sijaitseva upea ja arvokas rakennus, joka tarjoaa huippuluokan toimitiloja. Tämä historiallinen toimistokiinteistö on Suomen vanhin betonirakenteinen liiketalo ja se on valmistunut täydellisestä saneerauksesta vuonna 2020. Sen toimitilat vastaavat täydellisesti nykytoimistovuokralaisen vaatimuksiin. Tilat ovat avaria, valoisia sekä erittäin muuntautumiskelpoisia. Saneerauksen yhteydessä uudistettiin talon pääaula, joka avautuu suurin lasiseinin Kluuvikadun suuntaan. Sisäänkäynti on erityisen edustava. Rakennuksen palvelut ovat monipuoliset, kattosaunasta ensiluokkaisiin kokoustiloihin ja avaraan sisäpihaan, jossa voi vaikkapa nauttia lounasta. Talon katutasossa on rakennusta elävöittäviä liiketiloja ja ympäristössä runsaasti ravintoloita, myymälöitä sekä hotelleja. Talossa on pyöräparkki sekä suihku- ja pukuhuonetilat kellarikerroksessa. Toimistot sijaitsevat kerroksissa 2.-7. ja tilat ovat räätälöitävissä vuokralaisen toiveiden mukaan ja ne toimivat hyvin sekä huonetoimistona että tehokkaana avokonttorina.

Perustiedot

Tyyppi:
Liiketila
Sopimustyyppi:
Vuokrataan
Osoite:
Aleksanterinkatu 11, 00100 Helsinki

Tilan koko

Kokonaispinta-ala:
750 m²

Ympäristö

Liikenneyhteydet:
Aleksanterinkatua pitkin kulkevat raitiovaunut 3B, 3T, 4, 4T, 7A ja 7B. Rautatieasemalle, josta juna- ja metroyhteydet, on lyhyt kävelymatka. Metroyhteys myös Kaisaniemestä. Bussiyhteydet Rautatientorilta, Elielinaukiolta ja Kampin keskuksesta.

Kartta

Ota yhteyttä

Cushman & Wakefield logotyyppi
C&W Retail Services
C&W Retail Services
Näytä puhelinnumero

Lähetä yhteydenottopyyntö

Tietosuojaseloste
This site is protected by reCAPTCHA and the Google Privacy Policy and Terms of Service apply.

Tietoa ilmoittajasta

Cushman & Wakefield logotyyppi

Cushman & Wakefield tekee tilanhakuprosessista helpon ja sujuvan! Kokenut henkilökuntamme auttaa sinua löytämään yrityksenne tarpeisiin sopivat toimitilat laajasta valikoimastamme. Autamme ja neuvomme tilantarvekartoituksesta aina sopimusneuvotteluihin saakka. Kaikilla välittäjillämme on alalle soveltuva pätevyys sekä pitkä ja monipuolinen kokemus alalta. Cushman & Wakefieldilla on markkinoiden laajin vapaiden toimitilojen valikoima, ja päämiehiämme ovat kaikki Suomessa toimivat merkittävät kiinteistönomistajat, -sijoittajat sekä rakennusliikkeet.

Ilmoittajan muut kohteet