Uudet käyttö- ja sopimusehdot
Päivitämme käyttö- ja sopimusehtojamme. Uudet ehdot ovat voimassa 1.5.2025 alkaen. Tutustu ehtoihin
Itälahdenkatu 23 Lauttasaari, Helsinki
00210Tyyppi
Toimisto
Koko
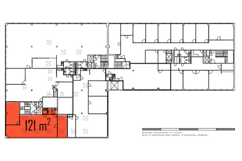
121 m²
Kerros
5
Vuokra
Kysy hintaa!
Vuokrattava toimistotila 121 m2 muodostuu yhdestä suuresta tilasta sekä kahdesta erillisestä huoneesta, joita voi käyttää esim. toimistona ja varastona. Kattoikkunoista tila saa lisävaloa, toimisto kun sijaitsee ylimmässä kerroksessa. Toimitila sopii myös showroomiksi. Tiloissa on wc ja keittiö. Käytössä henkilöhissi.
Helsingin Lauttasaaressa sijaitseva toimistorakennus on valmistunut 1970-luvulla. Sen kokonaispinta-ala on 7000 m2. Kohteessa on omia parkkipaikkoja ja lastauslaituri. Toimitilojen lähistöllä on useita lounasravintoloita.
Rakennuksessa on viisi kerrosta ja kellarikerros. Henkilöhissit kulkevat kaikkiin kerroksiin, tavarahissit kellarista 4. kerrokseen asti.
Yhteydenotot 020 7290 710. Lisää kohteita www.premises.fi.
Kohteella ei ole lain edellyttämää energiatodistusta tai energialuokka ei tiedossa.
Perustiedot
Tyyppi:
Toimisto, Muu
Sopimustyyppi:
Vuokrataan
Osoite:
Itälahdenkatu 23, 00210 Helsinki
Kaupunginosa:
Lauttasaari
Tilan koko
Kokonaispinta-ala:
121 m²
Tilan jakautuminen tilatyyppien mukaan
| Tilatyypit | Min m² | Max m² | €/m²/kk |
|---|---|---|---|
| Toimisto | 121 | ||
| Muu | 121 |
Lisätiedot
Kerros:
5
Dokumentit
Kartta
Tietoa ilmoittajasta

CRE PREMISES
Näytä kaikki saman ilmoittajan kohteetVantaankoskentie 14
01670
VANTAA














