Itätullinkatu 29 Keskusta, Pori

28100

Tyyppi

Liiketila

Koko

590 m²

Saatavilla

Sopimuksen mukaan

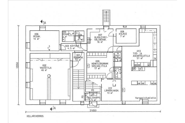
Huippupaikalla toimitilaa kauniissa kivitalossa. Tilat kolmessa kerroksessa yhteensä n.590m2. Entiset Itätullin päiväkodin tilat.

Perustiedot

Tyyppi:
Liiketila
Sopimustyyppi:
Myydään
Osoite:
Itätullinkatu 29, 28100 Pori
Kaupunginosa:
Keskusta
Myyntihinta:
650 000 €

Rakennustiedot

Energialuokka:
Ei energiatodistusta, Kohteelle ei lain mukaan tarvitse hankkia energiatodistusta / Myyjä ei ole hankkinut energiatodistusta ja sen vuoksi energialuokka ei ole tiedossa

Lisätiedot

Saatavilla:
Sopimuksen mukaan
Huoneiden määrä:
13
Muita tietoja:
Käyttökulut : sähkö, kaukolämpö ja vesi.

Dokumentit

Kartta

Ota yhteyttä

OP Koti Länsi-Suomi Oy logotyyppi
Olli Tuumi
Olli Tuumi Myyntineuvottelija, KiLAT
Näytä puhelinnumero

Lähetä yhteydenottopyyntö

Tietosuojaseloste
This site is protected by reCAPTCHA and the Google Privacy Policy and Terms of Service apply.