Uudet käyttö- ja sopimusehdot
Päivitämme käyttö- ja sopimusehtojamme. Uudet ehdot ovat voimassa 1.5.2025 alkaen. Tutustu ehtoihin
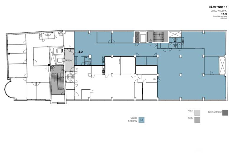
Hämeentie 15 Sörnäinen, Helsinki
00500Tyyppi
Toimisto
Koko
470 m²
Kerros
4
Vuokra
Kysy hintaa!
Talo on valmistunut vuonna 1958 ja on sen jälkeen nähnyt monta menestyvää yritystä tiloissa. Talon ilme ja tilat kohentuivat huomattavasti kunnostuksen myötä ja mahdollistavat nyt nykyajan työskentelytavat. Taloon on rakennettu sosiaalitilat alakertaan ja aula on remontoitu.
Monitilatoimisto, jossa on useita eri kokoisia huoneita. Talo sijaitsee erinomaisella paikalla Helsingin Sörnäisissä. Ota yhteyttä ja kysy lisää!
Lisätietoja numerosta 020 7290 710. Lisää kohteita osoitteessa premises.fi.
Kohteella ei ole lain edellyttämää energiatodistusta.
Perustiedot
Tyyppi:
Toimisto
Sopimustyyppi:
Vuokrataan
Osoite:
Hämeentie 15, 00500 Helsinki
Kaupunginosa:
Sörnäinen
Tilan koko
Kokonaispinta-ala:
470 m²
Lisätiedot
Kerros:
4
Ympäristö
Liikenneyhteydet:
Hyvät julkiset kulkuyhteydet, esim. Hakaniemen metroasema kävely etäisyydellä, raitiovaunu- ja linja-autoliikenne Hämeentiellä.
Tietoa ilmoittajasta

CRE PREMISES
Näytä kaikki saman ilmoittajan kohteetVantaankoskentie 14
01670
VANTAA






















