Uudet käyttö- ja sopimusehdot
Päivitämme käyttö- ja sopimusehtojamme. Uudet ehdot ovat voimassa 1.5.2025 alkaen. Tutustu ehtoihin
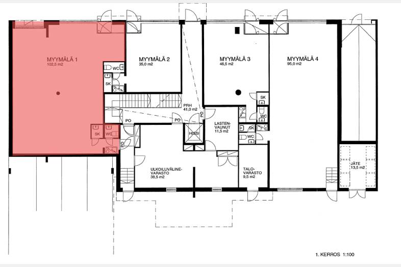
Pitkäkatu 32 Keskusta, Vaasa
65100Tyyppi
Liiketila
Koko
102 m²
Vuokra
Kysy hintaa!
Vaasan keskustassa vuokrattavana siisti liiketila.
Lisätietoja 020 7290 710. Lisää kohteita www.premises.fi
Kohteella ei ole lain edellyttämää energiatodistusta.
Perustiedot
Tyyppi:
Liiketila
Sopimustyyppi:
Vuokrataan
Osoite:
Pitkäkatu 32, 65100 Vaasa
Kaupunginosa:
Keskusta
Tilan koko
Kokonaispinta-ala:
102 m²
Tietoa ilmoittajasta

CRE PREMISES
Näytä kaikki saman ilmoittajan kohteetVantaankoskentie 14
01670
VANTAA





