Uudet käyttö- ja sopimusehdot
Päivitämme käyttö- ja sopimusehtojamme. Uudet ehdot ovat voimassa 1.5.2025 alkaen. Tutustu ehtoihin
Sentnerikuja 1 Lassila, Helsinki
00400Tyyppi
Toimisto
Koko
1 564 m²
Kerros
4
Vuokra
Kysy hintaa!
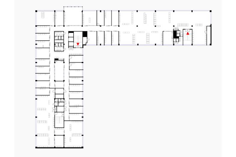
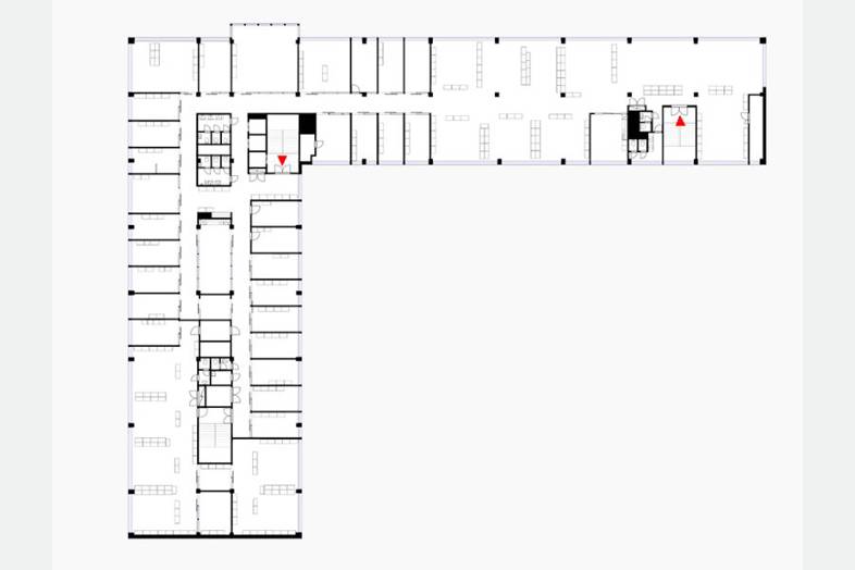
Koko kerroksen valoisa toimistohuoneisto hyvällä sijainnilla Helsingin Lassilassa. Tilat ovat joustavasti muokattavissa ja myös yhdistettävissä ylemmän kerroksen kanssa.
Sisääntulokerroksessa on aulapalvelupiste, kokouskeskus, saunaosasto sekä pienvarastoja. Kiinteistön pihalla on pysäköintipaikkoja, samoin viereisessä pysäköintitalossa vuokrapaikkoja.
Lisätiedot ja kohde-esittelyt 020 7290 710, lisää kohteita premises.fi .
Kohteella ei ole lain edellyttämää energiatodistusta tai energialuokka ei tiedossa.
Perustiedot
Tyyppi:
Toimisto
Sopimustyyppi:
Vuokrataan
Osoite:
Sentnerikuja 1, 00400 Helsinki
Kaupunginosa:
Lassila
Tilan koko
Kokonaispinta-ala:
1564 m²
Lisätiedot
Kerros:
4
Ympäristö
Liikenneyhteydet:
Loistavat liikenneyhteydet niin autolla kuin junalla liikkuville. Kiinteistö sijaitsee Vihdintien ja Kehä I:n välittömässä läheisyydessä, lyhyen kävelymatkan päässä Pohjois-Haagan juna-asemasta.
Kartta
Tietoa ilmoittajasta

CRE PREMISES
Näytä kaikki saman ilmoittajan kohteetVantaankoskentie 14
01670
VANTAA












