Uudet käyttö- ja sopimusehdot
Päivitämme käyttö- ja sopimusehtojamme. Uudet ehdot ovat voimassa 1.5.2025 alkaen. Tutustu ehtoihin
Valimotie 14 Pitäjänmäki, Helsinki
00380Tyyppi
Toimisto
Koko
595 m²
Vuokra
Kysy hintaa!
Saatavilla
Heti vapaa
Rakennuksen kuvaus:
Valimotie 14 on uusi kehityshanke Pitäjänmäen sydämessä. Valimosta on hyvät liikenneyhteydet keskustaan, lentokentälle sekä muihin pääkaupunkiseudun alueisiin. Valimon juna-asema sijaitsee noin 500 metrin päässä, kuten myös Valimotien bussipysäkki, josta kulkee useita seutu- (mm. jokerilinja) ja sisäisiä linjoja.
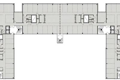
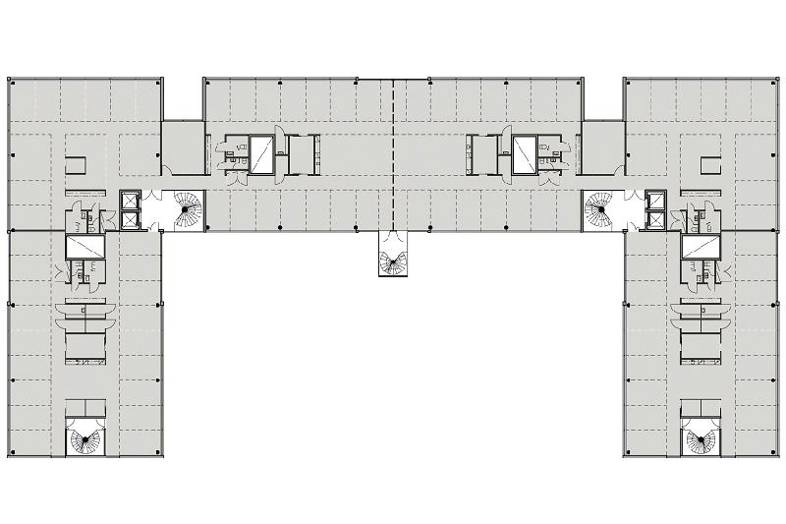
Valimotie 14 tarjoaa nykyaikaista ja tehokasta tilaa vaativiinkin tarpeisiin. Ensimmäisessä kerroksessa sijaitsevat kohteen palvelut, joita ovat mm. 130-paikkainen ravintola, vastaanotto- ja neuvottelutilat, sekä kaksi toimistosiipeä. Kerrokset 2-7 ovat toimistokerroksia. Parkkipaikat sijaitsevat kahdessa kellarikerroksessa.
Tilan kuvaus:
Uutta joustavaa tilaa Valimon sydämessä. Työpisteet on sijoitettu rakennuksen ulkoseinien viereen luonnonvalon hyödyntämiseksi. Keskialueilla sijaitsevat viihtyisät tauko- ja kohtaamistilat sekä wc- ja kopiotilat. Jäähdytettyä ja energiatehokasta tilaa, jossa akustiikkaan on kiinnitetty erityishuomio.
Kerrokset kerrokset jaettavissa 1-4 käyttäjän kesken, jolloin yksi osa 595m2.
Kerros: 3-7
Perustiedot
Tyyppi:
Toimisto
Sopimustyyppi:
Vuokrataan
Osoite:
Valimotie 14, 00380 Helsinki
Kaupunginosa:
Pitäjänmäki
Tilan koko
Kokonaispinta-ala:
595 m²
Rakennustiedot
Kiinteistön nimi:
Toimistotila
Lisätiedot
Saatavilla:
Heti vapaa
Kartta
Tietoa ilmoittajasta
JLL Jones Lang LaSalle Finland Oy
Näytä kaikki saman ilmoittajan kohteetKeskuskatu 7, 4. krs
00100
HELSINKI








