Uudet käyttö- ja sopimusehdot
Päivitämme käyttö- ja sopimusehtojamme. Uudet ehdot ovat voimassa 1.5.2025 alkaen. Tutustu ehtoihin
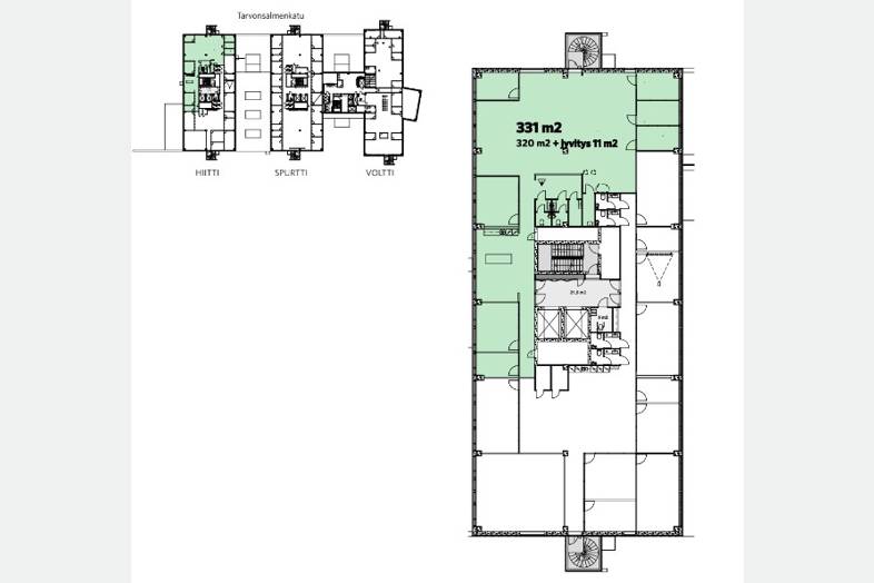
Tarvonsalmenkatu 15 Espoo
02600Tyyppi
Toimisto
Koko
331 m²
Vuokra
Kysy hintaa!
Kuudennen kerroksen toimistotila Derby Business Parkista
Perustiedot
Tilan koko
Ympäristö
Kartta
Tietoa ilmoittajasta
Cushman & Wakefield
Näytä kaikki saman ilmoittajan kohteetKeskuskatu 1a
00100
HELSINKI
Cushman & Wakefield tekee tilanhakuprosessista helpon ja sujuvan! Kokenut henkilökuntamme auttaa sinua löytämään yrityksenne tarpeisiin sopivat toimitilat laajasta valikoimastamme. Autamme ja neuvomme tilantarvekartoituksesta aina sopimusneuvotteluihin saakka. Kaikilla välittäjillämme on alalle soveltuva pätevyys sekä pitkä ja monipuolinen kokemus alalta. Cushman & Wakefieldilla on markkinoiden laajin vapaiden toimitilojen valikoima, ja päämiehiämme ovat kaikki Suomessa toimivat merkittävät kiinteistönomistajat, -sijoittajat sekä rakennusliikkeet.























































































































