Uudet käyttö- ja sopimusehdot
Päivitämme käyttö- ja sopimusehtojamme. Uudet ehdot ovat voimassa 1.5.2025 alkaen. Tutustu ehtoihin
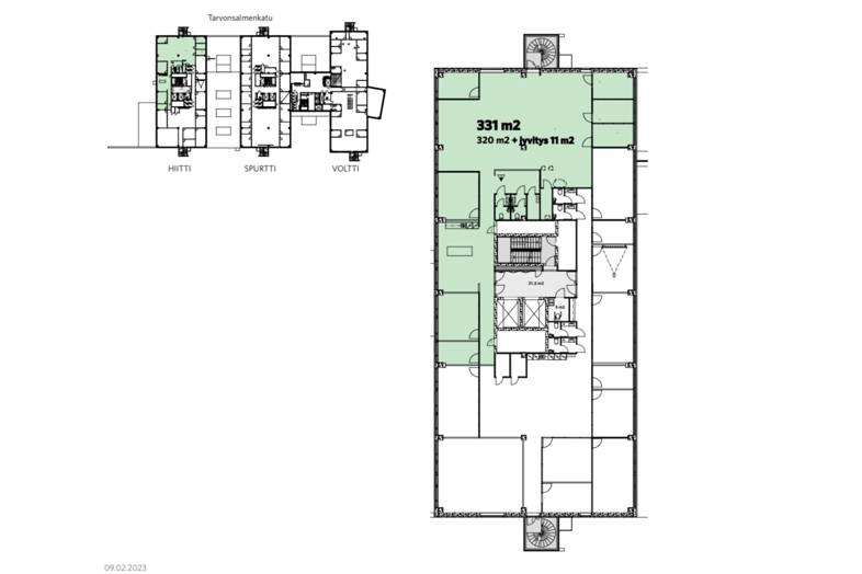
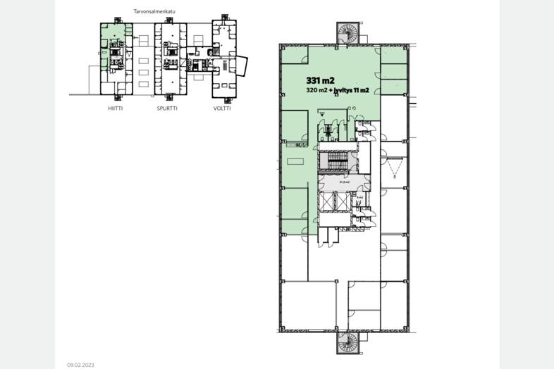
Tarvonsalmenkatu 15-17 Perkkaa, Espoo
02600Tyyppi
Toimisto
Koko
331 m²
Kerros
6
Vuokra
Kysy hintaa!
Oivallisia tilaratkaisuja tarjoava Derby Business Park on valmistunut Espoon Suur-Leppävaaraan Perkkaalle. Derbyn nimi on peräisin naapurissa sijaitsevasta Vermon raviradasta. Derbyyn on helppo tulla autolla tai bussilla ja pysäköintitilaa on runsaasti. Fiksut tilat ovat joustavasti muunneltavissa. Käyttäjiä odottavat erinomaiset palvelut, kuten esimerkiksi lounasravintola ja kahvila, vastaanottopalvelu, neuvottelutilat, autonpesupalvelu jne.
Derbyssä on luonto lähellä ja ylimmistä kerroksista avautuvat upeat merinäkymät Laajalahden suojelualueelle. Talvella voi työpäivän päätteeksi heittää hiihtolenkin suoraan pääovelta ja syksyllä poimia mustikoita Derbyn pihalta.
Ensimmäinen talo Hiitti on valmis ja toinen talo Spurtti on valmistunut kesäkuussa 2013.
Vuokrattavana koko muuntojoustava kuudennen kerroksen toimistotila. Kohteeseen on hyvät kulkuyhteydet, joten liikkuminen paikan päälle on vaivatonta.
Erikoisuutena kellaritiloissa on konesalitila, joka sopii myös korkeaan varastotarpeeseen. Tilan pinta-ala on 240 m2 ja korkeutta on jopa 4,5 m. Lastauslaituri toimii samassa kerroksessa suojaisasti kellarissa.
Pysäköintitilaa on runsaasti niin autoille kuin pyörillekin. Pysäköintilaitos Paalussa on pysäköintioikeuksia noin 570 kpl. Maanalaista käytävää pitkin on mukava kävellä toimistoon kuivin jaloin. Pihalla on lisäksi vapaasti käytettäviä asiakaspysäköintipaikkoja. Sähköautoille on tehty omat latauspisteet. Polkupyörille on oma parkki ulkona ja sisällä.
Lisätietoja 020 7290 710. Lisää kohteita www.premises.fi
Kohteella ei ole lain edellyttämää energiatodistusta.
Perustiedot
Tyyppi:
Toimisto
Sopimustyyppi:
Vuokrataan
Osoite:
Tarvonsalmenkatu 15-17, 02600 Espoo
Kaupunginosa:
Perkkaa
Tilan koko
Kokonaispinta-ala:
331 m²
Lisätiedot
Kerros:
6
Ympäristö
Liikenneyhteydet:
Erinomaiset liikenneyhteydet joka suuntaan sekä autolla, että julkisilla kulkuvälineillä.
Kartta
Tietoa ilmoittajasta

CRE PREMISES
Näytä kaikki saman ilmoittajan kohteetVantaankoskentie 14
01670
VANTAA




















