Uudet käyttö- ja sopimusehdot
Päivitämme käyttö- ja sopimusehtojamme. Uudet ehdot ovat voimassa 1.5.2025 alkaen. Tutustu ehtoihin
Kirvesmiehenkatu 6 Herttoniemi, Helsinki
00880Tyyppi
Toimisto
Koko
273 m²
Kerros
2
Vuokra
Kysy hintaa!
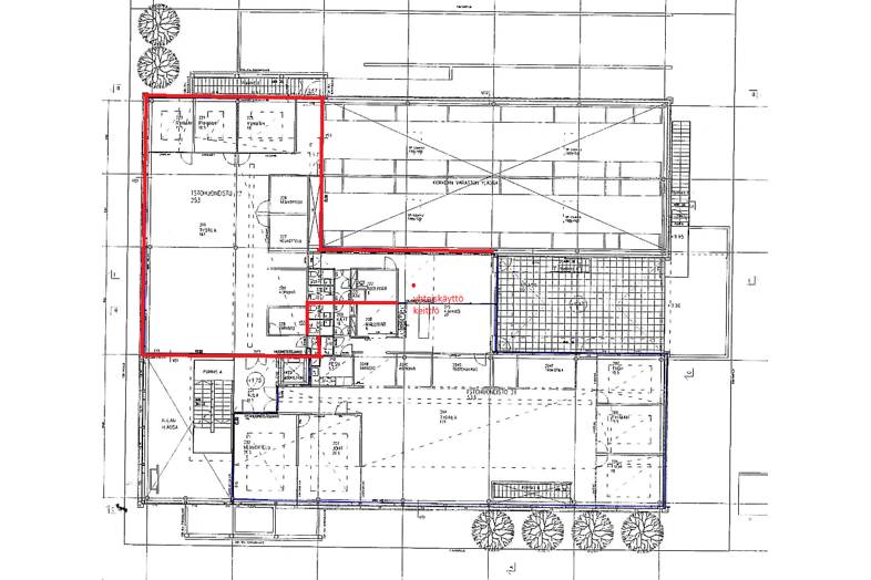
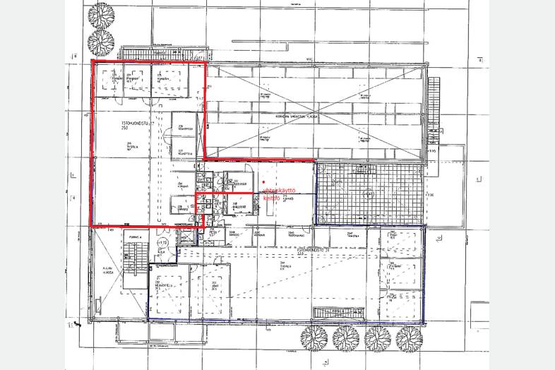
Vuokrattavana toisen kerroksen toimistotilaa yhteensä 253 m2 + 20 m2 yhteiskeittiö. Tilassa 3 + 2 huonetta muuten avotilaa. Iso keittiö / ruokailutila yhdessä viereisen tilan kanssa, 2 x wc. Käynti ulkoterassille. Tilaan pääsee myös hissillä.
Autohallipaikkoja myös vuokrattavissa. Yhteydenotto kohteen osalta p. 045- 261 6555/ Mika tai 020 7290 710.
Kohteella ei ole lain edellyttämää energiatodistusta.
Perustiedot
Tyyppi:
Toimisto
Sopimustyyppi:
Vuokrataan
Osoite:
Kirvesmiehenkatu 6, 00880 Helsinki
Kaupunginosa:
Herttoniemi
Tilan koko
Kokonaispinta-ala:
273 m²
Lisätiedot
Kerros:
2
Kartta
Tietoa ilmoittajasta

CRE PREMISES
Näytä kaikki saman ilmoittajan kohteetVantaankoskentie 14
01670
VANTAA








