Leppäsuonkatu 9 Kamppi, Helsinki

00100

Tyyppi

Toimisto

Koko

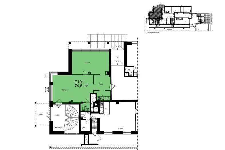
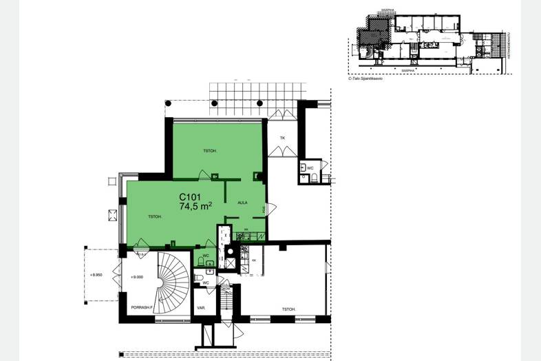
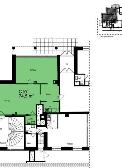
74 m²

Vuokra

Toimistotila vuokrattavana – Domus Academica, Kamppi Tarjolla on valoisa ja avara 74,5 m² toimistotila Domus Academicassa, erinomaisella sijainnilla Kampissa. Tila soveltuu monenlaiseen toimistokäyttöön ja tarjoaa viihtyisän työympäristön. Keskeiset ominaisuudet: ✔ Erinomainen sijainti Kampissa ✔ Hyvät julkisen liikenteen yhteydet ✔ Avara ja muunneltavissa oleva tila ✔ Kävelyetäisyydellä monipuoliset palvelut Tämä toimistotila tarjoaa ihanteellisen ratkaisun yritykselle, joka arvostaa keskeistä sijaintia ja hyviä kulkuyhteyksiä. Kiinnostuitko? Ota yhteyttä ja sovi esittely! Vuokra: Hintatiedot pyydettäessä!

Perustiedot

Tyyppi:
Toimisto
Sopimustyyppi:
Vuokrataan
Osoite:
Leppäsuonkatu 9, 00100 Helsinki
Kaupunginosa:
Kamppi

Tilan koko

Kokonaispinta-ala:
74 m²

Kartta

Ota yhteyttä

Arvo Premises Oy logotyyppi
Tietosuojaseloste
This site is protected by reCAPTCHA and the Google Privacy Policy and Terms of Service apply.
JK
Joakim Kukkonen Osakas, Toimitilavälittäjä
Näytä puhelinnumero
SP
Seppo Pakarinen Osakas, Kiinteistönvälittäjä. LKV, YKV, AKA
Näytä puhelinnumero