Leppäsuonkatu 9 Keskusta, Helsinki

00100

Tyyppi

Toimisto

Koko

74 m²

Kerros

1

Vuokra

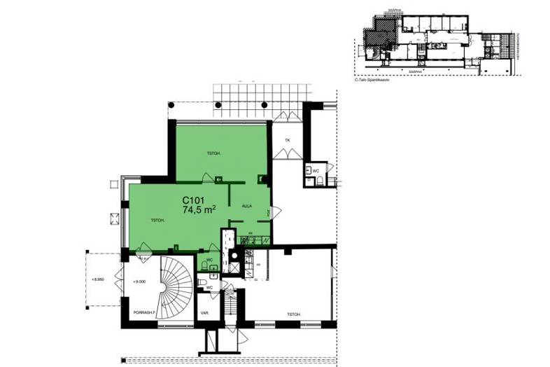
Pohjakerroksen 74,5 m² pieni toimisto Domus Academicasta. Vuokrattavissa oleva tila on Domus Academican pohjakerroksessa. Vuosina 1952 ja 1968 valmistunut Domus Academica eli tuttavallisemmin Domma koostuu kahdesta vuokra-asuntoja tarjoavasta kiinteistöstä hyvien kulkuyhteyksien varrella Kampissa. Asuntojen lisäksi Domus Academicalla sijaistee myös ravintola-, osakunta- ja toimistotiloja. Kiinteistöstä on maanalainen yhteys viereiseen Domus Gaudiumiin sekä parkkihalliin. Kiinteistössä on lounasravintola ja catering-palvelu. Talon parkkihallista on vuokrattavissa runsaasti autopaikkoja.

Perustiedot

Tyyppi:
Toimisto
Sopimustyyppi:
Vuokrataan
Osoite:
Leppäsuonkatu 9, 00100 Helsinki
Kaupunginosa:
Keskusta

Tilan koko

Kokonaispinta-ala:
74 m²

Rakennustiedot

Rakennusvuosi:
2008
Energialuokka:
Ei lain edellyttämää energiatodistusta

Lisätiedot

Kerros:
1

Kartta

Ota yhteyttä

ScanReal Oy LKV logotyyppi
ScanReal Oy LKV
ScanReal Oy LKV
Näytä puhelinnumero

Lähetä yhteydenottopyyntö

Tietosuojaseloste
This site is protected by reCAPTCHA and the Google Privacy Policy and Terms of Service apply.

Tietoa ilmoittajasta

ScanReal Oy LKV logotyyppi